52- CNC Programlamada Koordinat Döndürme İşlemi Nedir?
Programlanmış bir takım hareketinin ortogonal yönde oluşturduğu model, kontur ve cepler tanımlanmış bir nokta etrafında belirtilen açı ile döndürülebilir. Bu kontrol özelliği ile CNC programlama sürecini daha kolay, esnek ve verimli hale getirmek mümkündür. Bu güçlü programlama yeteneği genellikle kontroldeki özel bir seçenektir ve koordinat sistemi döndürme ya da daha basit haliyle koordinat döndürme olarak adlandırılır.

Koordinat Döndürme İşlemi
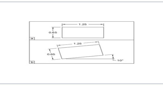
Koordinat döndürmenin en önemli kullanım alanı, esas olarak dikey veya yatay olarak tanımlanmış ancak çizim tarafından belirtilen bir açıyla işlenen programdır. Ortografik mod, takım hareketini makine eksenlerine paralel olarak tanımlar. Programlamak, gerçek açısal oryantasyonda takım konumlarını kontur değişim noktasına göre hesaplamaktan çok kolaydır. Aşağıdaki görselde yer verilen iki dikdörtgeni incelemelisiniz.

Orijinal Ortognal Nesne ve Döndürülmüş Nesne
Yukarıdaki şekil (a) dikdörtgenin ortogonal yönünü gösterirken, şekil (b) aynı dikdörtgenin saat yönünün tersine 10 derece döndürülmüş durumunu göstermektedir. Manuel olarak, şekil (a) için programlanan takım yolunun, kontrol sistemi tarafından şekil (b)’de gösterilen takım yoluna değiştirmesine izin vermek kolaydır.
Koordinat döndürme özelliği, özel bir seçenek olması nedeniyle kontrol sisteminin bir parçası olmalıdır. Matematiksel olarak koordinat dönüşü, döndürülen parçayı tanımlamak için dönüş merkezi, dönüş açısı ve döndürülecek takım yolu öğelerini gerektiren bir özelliktir.
Programlanmış bir takım hareketinin ortogonal yönde oluşturduğu model, kontur ve cepler tanımlanmış bir nokta etrafında belirtilen açı ile döndürülebilir. Bu kontrol özelliği ile CNC programlama sürecini daha kolay, esnek ve verimli hale getirmek mümkündür. Bu güçlü programlama yeteneği genellikle kontroldeki özel bir seçenektir ve koordinat sistemi döndürme ya da daha basit haliyle koordinat döndürme olarak adlandırılır.

Koordinat Döndürme İşlemi
Koordinat döndürmenin en önemli kullanım alanı, esas olarak dikey veya yatay olarak tanımlanmış ancak çizim tarafından belirtilen bir açıyla işlenen programdır. Ortografik mod, takım hareketini makine eksenlerine paralel olarak tanımlar. Programlamak, gerçek açısal oryantasyonda takım konumlarını kontur değişim noktasına göre hesaplamaktan çok kolaydır. Aşağıdaki görselde yer verilen iki dikdörtgeni incelemelisiniz.

Orijinal Ortognal Nesne ve Döndürülmüş Nesne
Yukarıdaki şekil (a) dikdörtgenin ortogonal yönünü gösterirken, şekil (b) aynı dikdörtgenin saat yönünün tersine 10 derece döndürülmüş durumunu göstermektedir. Manuel olarak, şekil (a) için programlanan takım yolunun, kontrol sistemi tarafından şekil (b)’de gösterilen takım yoluna değiştirmesine izin vermek kolaydır.
Koordinat döndürme özelliği, özel bir seçenek olması nedeniyle kontrol sisteminin bir parçası olmalıdır. Matematiksel olarak koordinat dönüşü, döndürülen parçayı tanımlamak için dönüş merkezi, dönüş açısı ve döndürülecek takım yolu öğelerini gerektiren bir özelliktir.
İlgili Yazılar
42- Diş Açma Besleme ve İş Mili Hızı
Tüm aktif kesim hareketlerinde bir besleme hızı değeri bulunur.
44- Diş Açma Süreci
Diş açma, modern makine atölyelerindeki otomatik programlama görevlerinin başında
47- Diş Açma Uygulamalarındaki Tekrarlamalı Döngü
Önceki birkaç konuda tornalama ve delik işlemede kullanılan farklı
39- CNC Programlama İşleminde Diş Besleme Yöntemleri Nelerdir?
Diş çekme takımlarının malzemeye girişi farklı şekillerde programlanabilir. En
40- CNC Programlamada Bileşik Besleme Hesaplamaları Nasıl Yapılır?
Bileşik (yan) besleme, gelişmiş G76 diş çekme döngüsü ile
61- Programlama Sürecinde CNC İşleme
GENEL BAKIŞ Bir parça için program tamamen tamamlanıp atölyeye